Sinah Lane, Hayling Island
Property Features
- Superbly presented house
- Very sought after area
- Close to the beach
- Individual architect designed
- Powder coated double glazing
- Both underfloor and gas central heating
- Very attractive fully fitted kitchen
- South facing double glazed conservatory
- Ample off road parking
- Detached double garage
- South facing rear garden
Property Summary
Full Details
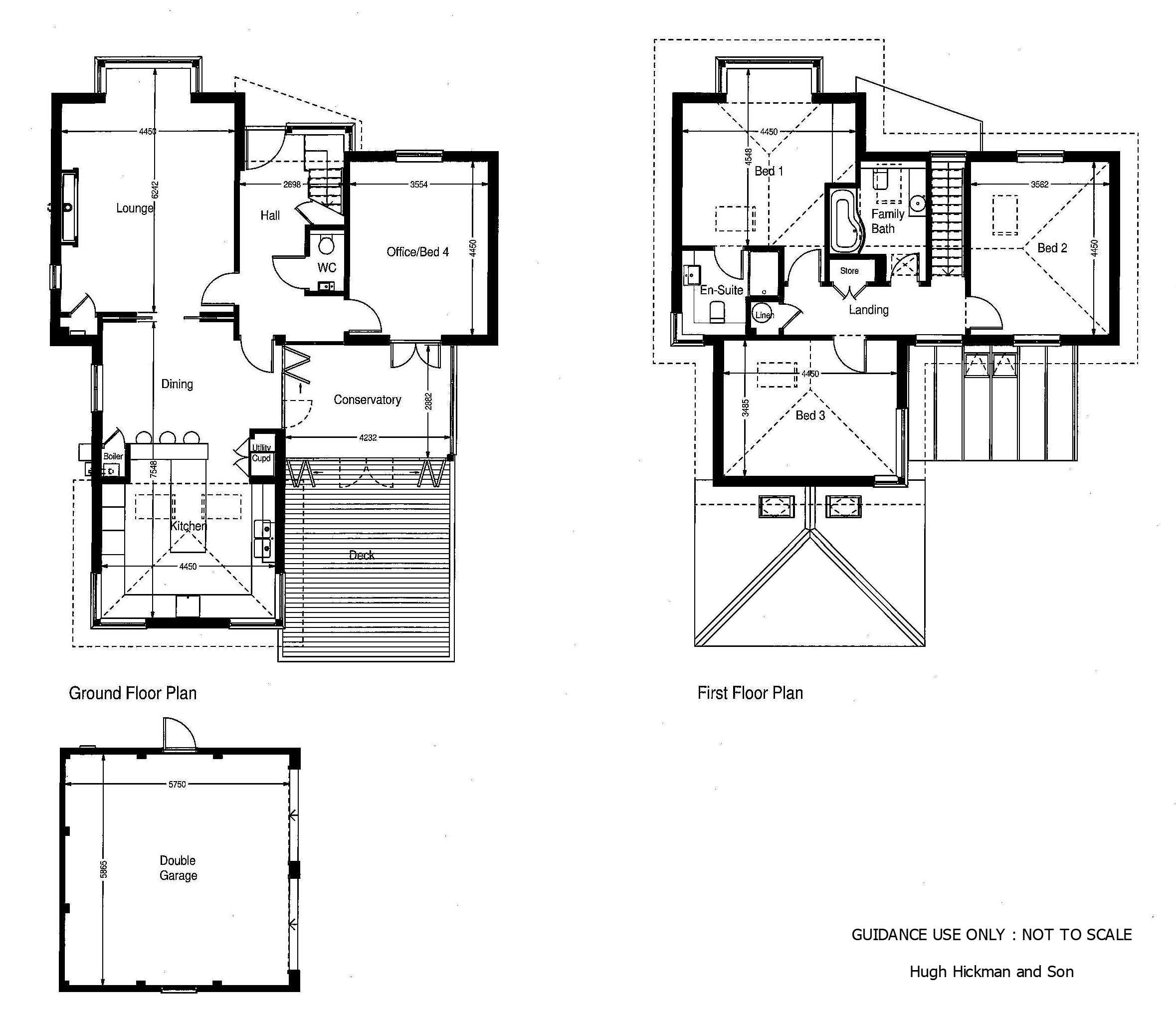
Hugh Hickman and Son are delighted to bring to the market, this superbly presented, detached four bedroom house which is located in one of the most sought after roads on Hayling Island. This individual architect designed house is situated only a short walk from both the Seafront and West Town Shopping Centre with all its amenities. Havant Town Centre with all its amenities is also only an approximate fifteen-minute driveway.
The property has many features including polyester powder coated aluminium double glazing throughout and zone controlled underfloor heating to the ground floor. The downstairs accommodation comprises a spacious hallway, lounge, a very attractive fully fitted kitchen / dining room, a south facing double glazed conservatory, bedroom 4 / office and a cloakroom. The first floor has a landing, three double bedrooms, (the main bedroom with shower en-suite) and an attractive family bathroom. The property is approached by a long driveaway turning into a private driveway serving 60A, offering ample off road parking for several vehicles, a boat, or a motorhome etc, a detached double garage, a garden area to the front and an enclosed south facing rear garden.
Internal viewing is strongly advised to fully appreciate this property, by appointment only please, through Hugh Hickman & Son.
The accommodation comprises:-
COVERED PORCH
Attractive double glazed front door to:
SPACIOUS HALLWAY
Large double glazed window to the front. Double glazed window to the side. Feature oak flooring, (with zone controlled underfloor heating). Attractive part glazed oak staircase to the first floor, (with a cupboard under). Inset ceiling spotlights. Large south facing double glazed window to the rear. Space for coats etc. Doors leading to:
CLOAKROOM
Fitted with an attractive white suite. Low level WC. Feature vanity wash hand basin with mixer taps, splashback tiles and a cupboard under. Ceramic tiled floor. Extractor. Inset ceiling spotlights. Fitted mirror.
LOUNGE
20’4” x 14’5” (6.19m x 4.39m) Three double glazed windows in a bay to the front. Fitted Epsom home cinema projection system with a pull down 108” screen. Built in 65” OLED television. Inset Atmos ceiling speakers, with floor standing speakers and subwoofer. Attractive built in log effect gas fire, (with a remote control). Double glazed window to the side. Shelving. Built in media cupboard. Built in part glazed sliding double doors to:
KITCHEN / DINING ROOM
24’7” x 14’5” (7.49m x 4.39m) The kitchen is fitted on three sides with very attractive units. Range of Corian worktops with drawers and cupboards under. Inset twin bowl sink unit with a Quooker boiling hot/filtered chilled water tap and a cupboard under. Matching high level cupboards, (with concealed lighting under). Two built in Neff high level stainless steel ovens. Built in high level Neff microwave/combination oven. Built in high level Neff steam oven. Inset Neff four ring induction hob with a feature stainless steel extractor over. Full size integral fridge. Two integral freezers. Integral wine fridge. Integral dishwasher. Walls part tiled. Ceramic tiled floor, (with zone controlled underfloor heating). Feature breakfast bar. Two double glazed Velux roof windows to the side. Two south facing double glazed windows with pleasant views over the rear garden. Two double glazed windows to the sides. Multi-directional ceiling spotlights. Television point. The dining room has a feature wooden floor, (with zone controlled underfloor heating). Inset ceiling spotlights. Built in cupboard, (which houses the wall hung Worcester gas boiler). Inset Atmos ceiling speakers. Range of attractive fitted cupboards. Return door to the hallway. Wide double glazed bi-fold doors leading to:
CONSERVATORY
13’8” x 9’4” (4.16m x 2.84m) Full width south facing double glazed bi-fold doors, which open onto the south facing raised decking area. Wide double glazed windows to the side. Wall lights. Power points. Ceramic tiled floor, (with zone controlled underfloor heating).
BEDROOM 4/OFFICE
14’5” x 11’ (4.39m x 3.35m) Double glazed window to the front. South facing UPVC double glazed French doors to the conservatory. Feature wooden flooring, (with zone controlled underfloor heating). Inset ceiling spotlights. Telephone and ethernet.
FIRST FLOOR
LANDING
Two south facing double glazed windows to the rear. Inset ceiling spotlights. Large double window to the front. Radiator. Double door built in cupboard. Built in airing cupboard which houses the hot water tank and shelving. Doors leading to:
BEDROOM 1
14’9” x 14’5” (4.49m x 4.39m) Three double glazed windows in a bay to the front. Double door built in wardrobe, with mirrored fronts. Inset ceiling spotlights. Two attractive wall lights. Television point. Radiator. Double glazed Velux roof window, (with a remote controlled fitted blind and a rain sensor), to the front. Door to:
SHOWER EN-SUITE
Fitted with an attractive white suite. Low level WC. Feature vanity wash hand basin with mixer taps and a range of cupboards under. Wide fully tiled shower enclosure with both a hand and a drencher shower. Chrome heated towel rail/radiator. Walls fully tiled. Fitted mirror. Shaver point. Inset ceiling spotlights. Extractor. South facing double glazed window with obscured glass to the rear. Double glazed window with obscured glass to the side.
BEDROOM 2
14’5” x 11’6” (4.39m x 3.50m) Double glazed window to the front. Two wall lights. Radiator. Double glazed Velux roof window to the front, (with a remote controlled fitted blind and rain sensor). Four door fitted wardrobe, with mirrored fronts.
BEDROOM 3
14’5” x 11’4” (4.39m x 3.45m) Double glazed window to the side. South facing double glazed window to the rear. Two wall lights. Radiator. Five door built in wardrobe, with mirrored fronts. Double glazed Velux roof window, (with a remote controlled fitted blind and rain sensor), to the side.
BATHROOM
Fitted with an attractive white suite. Low level WC. Feature circular wash hand basin with mixer taps, splashback tiles and a cupboard under. Panelled bath with a shower over. Side screen. Chrome heated towel rail/radiator. Access to the loft space. Ceramic tiled floor. Inset ceiling spotlights. Extractor. Shaver point. Double glazed Velux roof window to the front. Fitted mirror with two vanity lights. Wall light.
OUTSIDE
Large driveway, with ample off road parking, for cars, a boat or a motorhome etc). Detached 19’2” x 18’8” (5.84m x 5.68m) garage, (internal measurements), which has two electric roller doors, a door to the side and electric light and power. Wide side access with a gate. Second side access with a gate. Outside lights. Outside tap. Outside power points.
GARDENS
The front garden is laid to lawn. Shrubs and bushes. The enclosed rear garden is south facing. Laid to lawn. Large raised decking area. Stocked borders .Rear pedestrian gate to Sinah Lane. Mature trees, shrubs and bushes. An ideal garden for either children or the keen gardener.
NOTES
All double glazed windows and external doors are polyester powder coated aluminium throughout.
Low energy lighting throughout.
Centralised ventilation and heat recovery system.
3000 litre rainwater harvesting tank, (for washing cars etc).
1gb ethernet to media cupboard, bedroom 4 / office, and bedrooms 1, 2 and 3.
Council tax band G – Havant Borough Council
VIEWING STRICTLY BY APPOINTMENT THROUGH HUGH HICKMAN AND SON
Please note the services and appliances have not been tested and all measurements are approximate.
Photographs are reproduced for general information and it must not be inferred that any item is included for sale with the property.
Opening Hours : 9.00 am to 5.30 pm Monday to Friday
9.00 am to 3.00 pm Saturday




























































